Двухэтажный дом

Строительная компания "Пат" осуществляет строительство типового проекта двухэтажного дома в Химкие.
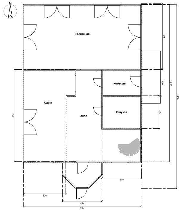
| Общая площадь | 170 м2 |
| Жилая площадь | 68,2 м2 |
Все материалы, используемые при строительстве двухэтажного дома, отвечают самым высоким стандартам качества и показали себя на высшем уровне в процессе эксплуатации данного сооружения.
В компании "Пат" вы сможете заказать услуги по строительству дома в Химкие по цене однокомнатной или двухкомнатной квартиры. При этом преимущества дома в современном мире трудно не заметить. Отдельная территория и отсутствие соседей делает вашу жизнь и времяпровождение в собственном загородном доме или коттедже уютным и комфортным отдыхом.
Предложенный типовой проект двухэтажного дома можно построить из следующих доступных материалов: кирпич, отсевоблоки, газобетон, теплоблоки





